Call 218-732-3607 or
Toll Free 888-576-9099

Big Timber Lodge in Park Rapids MN

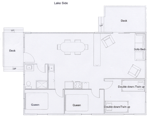
Ponderosa - Large Family Cabin by a Minnesota Lake
3 large bedrooms & sleeper sofa. Sliding glass door to huge deck overlooking the lake. Large knotty pine living & dining area.  AIR CONDITIONED (Beds; 2 queen, 2 double & 2 twin)

minnesota Cabin external

floor plan